
Je voulais vous parler du site Hubstairs que ma sœur a eu la chance de tester pour moi. [ Elle me sert parfois de cobaye ! Mais elle est volontaire. ] En pleine réflexion sur la refonte de sa chambre, cette proposition tombait à pic, car Hubstairs propose un service de conseil en décoration et aménagement d’intérieur à distance.
Il vous offre la possibilité de faire réaliser une étude de votre projet par un architecte d’intérieur en vous proposant une planche 3D, une planche tendance et une sélection shopping pour le forfait de base. Il existe en effet trois forfaits : Coach déco à 99 € par pièce, Une décoration signée à 199 € et pour aller plus loin, La rénovation sur mesure sur devis. Vous trouverez tous les détails sur le site.
Autres inspirations

Le projet : Refonte d’une chambre sous les toits
Le projet concernait donc l’aménagement d’une chambre sous les combles. Il n’y avait pas de travaux particuliers, en revanche ma sœur se posait beaucoup de questions sur les rangements. Comme on voit sur les photos « avant » (plus bas), elle ne savait quoi faire des placards casés sous les pentes du toit.

Comment ça se passe ?
Une fois inscrit sur la plateforme de Hubstairs, vous n’avez qu’à vous laisser conduire. C’est très simple d’utilisation.
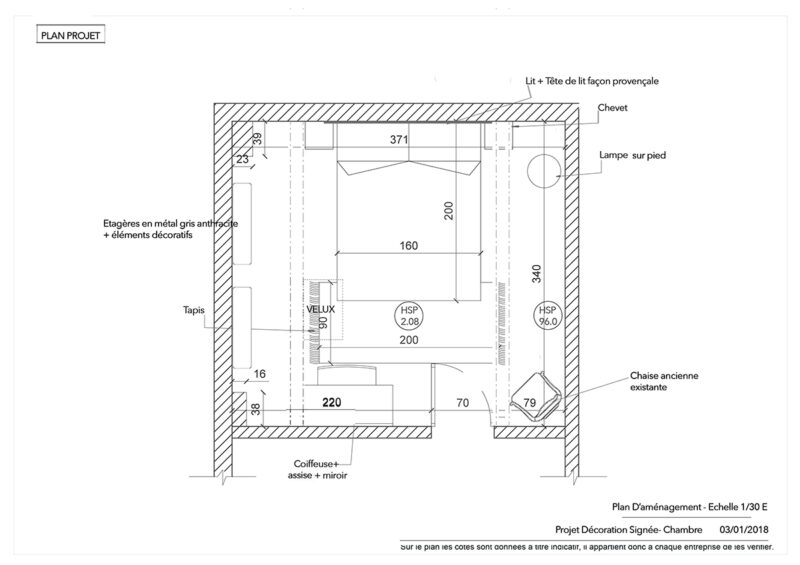
On vous demandera la pièce vous souhaitez refaire, votre fourchette de budget, Vous accéderez ensuite à un module avec plein d’images à sélectionner, afin de déterminer quelle ambiance vous souhaitez. Cette étape permettra à l’architecte d’intérieur de mieux cerner vos goûts et de vous créer une planche de style (ci-dessus). Pour terminer votre dossier, vous devrez télécharger les photos de la pièce à rénover et indiquer ses dimensions.
Ma sœur testait le forfait « Une décoration signée » et a donc eu un entretien avec une architecte d’intérieur. Cela lui a permis de mieux expliquer ses goûts, les problématiques de sa pièce et ce qu’elle voulait. Très rapidement, elle a reçu sa proposition qui répondait à ses attentes. Les deux images 3D lui ont permis de mieux visualiser l’aspect de sa pièce une fois terminée.



Au final, que pensez de Hubstairs ?
Ma sœur a été séduite par le service de Hubstairs. Elle a été ravie de l’échange qu’elle a eu avec l’architecte d’intérieur et du résultat. Cette dernière a bien pris en compte ses désirs et a réussi à intégrer la tête de lit « provençale » qu’elle venait d’acheter. Elle ne va pas forcément faire des achats à partir de la liste shopping qui lui a été fournie. Néanmoins, elle s’en est depuis largement inspirée dans ses achats.




Des autres exemples d’avant – après
Ce que j’en pense…
J’avais écrit un long article sur comment trouver un décorateur d’intérieur ?, où je décortiquais la différence entre décorateur, ambianceur, architecte d’intérieur. Vous êtes nombreux encore à réagir à cet article en partageant votre expérience. J’ai l’impression que la démarche d’aller à la rencontre d’un professionnel de la décoration et de l’aménagement d’intérieur fait cependant peur. On n’a surtout peur du coût.
La solution d’Hubstairs et des autres start-up qui se créent dans la même veine, sont une bonne alternative. Elles permettent de résoudre très, très rapidement une problématique déco ou d’agencement. La limite est que le résultat est assez attendu, mais les propositions sont adaptées à votre budget aussi et à ce que vous souhaitez !
Pour la refonte complète d’un intérieur que l’on aurait envie de vraiment personnaliser, je pense qu’il vaut mieux travailler main dans la main avec un architecte d’intérieur dont on aime l’univers. On peut aussi choisir d’aller plus loin avec le forfait « rénovation sur mesure ». Car c’est normal, au vu des tarifs, vous ne pouvez pas retravailler la proposition avec l’architecte et c’est vous qui menez les travaux !
Toutes les informations sur Hubstairs : ici.
N’hésitez pas à partager votre expérience si vous avez testé,
à me dire ce que vous pensez de ce type de proposition.
![]()








HAGEL
6 novembre
A ce prix, j’aimerais bien savoir ce que gagnent les architectes d’intérieur ?
A rationaliser par rapport au temps passé sur les projets ?
Sont-ils rentables ?
Clémence
7 novembre
Bonjour Hagel,
Je ne pourrais vous répondre. J’ai juste compris que les architectes sont salariés.
Il faut prendre conscience que pour ce service, vous ne choisissez pas l’architecte d’intérieur qui va travailler sur votre projet et que vous obtenez une seule proposition, non modifiable… Cela permet d’avoir une idée, une piste. Au final, nous avons fait autre chose.
Cordialement,
Clémence